コンフォリア滝野川302 3階 | 1DK | 12.7万円
礼金なしで初期費用抑えられます
| 賃料 | 12.7万円 | 管理費・共益費 | 0.8万円 |
|---|---|---|---|
| 敷金/礼金 | 1ヶ月 / なし | 専有面積 | 25.56m² |
| 間取り | 1DK | 階建 | 3階/15階建 |
コンフォリア滝野川302の詳細
| 物件種別 | マンション | ||
|---|---|---|---|
| 賃料 | 12.7万円 | 管理費・共益費 | 0.8万円 |
| 敷金/保証金 | 1ヶ月 / - | 礼金/償却・敷引 | なし / - |
| 更新料 | 1ヶ月 | ||
| その他費用 |
鍵交換費用:33,000円 室内清掃費用:44,000円 |
||
| 所在地 | 東京都北区滝野川7丁目48-2 | ||
| 交通 | |||
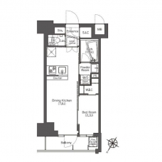
| 間取り | 1DK | 間取り内訳 |
DK 7.6 畳 洋室 2.3 畳 |
| 専有面積 | 25.56m² | バルコニー面積 | |
| 築年月(築年数) | 2018年09月(築7年) | 方位 | 北西 |
| 建物構造 | RC(鉄筋コンクリート) | 所在階/階建 | 3階/15階建 |
| 総戸数 | 123戸 | 駐車場 | 無 |
| 保険料 | 要 16,550円 2年 | 契約期間 | 2年間 |
| 現況(予定年月) | 2026年04月中旬 | ||
| 管理 | |||
| 設備・条件 | 2階以上、システムキッチン、バス・トイレ別、温水洗浄便座、浴室乾燥機、室内洗濯機置き場、フローリング、エアコン、ウォークインクローゼット、バルコニー、分譲賃貸、礼金なし、保証人不要、ペット相談、インターネット対応、オートロック、TVドアホン、防犯カメラ、宅配ボックス、エレベータ | ||
| 備考 | 1年未満解約の場合総賃料の1ヶ月分短期解約違約金あり。ペット飼育相談可能飼育時敷金プラス1か月(小型犬1匹もしくは猫2匹まで)。 | ||
| 周辺施設 |
コンビニ距離75m、スーパー距離375m、病院距離775m |
||
| 物件番号 | 1000766 | 取引態様 | 仲介 |
| 情報更新日 | 2026年03月08日 | ||
| 物件番号 | |||
敷金・礼金・家賃・入居時期時期など、何でもご相談ください!
歴史と情緒が薫る街・西日暮里でお部屋探し♪
ハウス・トゥ・ハウス西日暮里店で元気にお待ちしております!







