ザ・パークハビオ巣鴨1007 10階 | 1K | 13.4万円
お車でご案内いたします。お気軽にお問い合わせください。
| 賃料 | 13.4万円 | 管理費・共益費 | 1.5万円 |
|---|---|---|---|
| 敷金/礼金 | 1ヶ月 / なし | 専有面積 | 25.48m² |
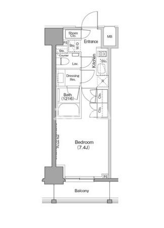
| 間取り | 1K | 階建 | 10階/14階建 |
360度パノラマ
ザ・パークハビオ巣鴨1007の詳細
| 物件種別 | マンション | ||
|---|---|---|---|
| 賃料 | 13.4万円 | 管理費・共益費 | 1.5万円 |
| 敷金/保証金 | 1ヶ月 / - | 礼金/償却・敷引 | なし / - |
| 更新料 | 1ヶ月 | ||
| その他費用 | 鍵交換費用:33,000円 | ||
| 所在地 | 東京都豊島区巣鴨4丁目22-17 | ||
| 交通 | |||
| 間取り | 1K | 間取り内訳 |
洋室 7.4 畳 1 室 |
| 専有面積 | 25.48m² | バルコニー面積 | |
| 築年月(築年数) | 2018年05月(築7年) | 方位 | 北西 |
| 建物構造 | RC(鉄筋コンクリート) | 所在階/階建 | 10階/14階建 |
| 総戸数 | - | 駐車場 | |
| 保険料 | 要 | 契約期間 | 2年間 |
| 現況(予定年月) | 2026年04月上旬 | ||
| 管理 | |||
| 設備・条件 | 2階以上、バス・トイレ別、温水洗浄便座、浴室乾燥機、追い焚き、室内洗濯機置き場、エアコン、バルコニー、礼金なし、保証人不要、ペット相談、楽器相談、事務所相談、360°パノラマ有り、BSアンテナ、オートロック、TVドアホン、宅配ボックス、エレベータ | ||
| 備考 | ◆ペット相談可(小型犬・猫2匹まで/敷金1ヶ月積み増し)◆楽器相談可(10時から20時まで/連続演奏1時間以内/消音機能付き限定)◆SOHO相談可◆解約予告2か月前◆退去時室内清掃費・エアコン洗浄費は借主様の実費負担になります◆フリーレント1ヶ月◆1年未満の解約時短期解約違約金あり | ||
| 周辺施設 |
コンビニ距離183m、スーパー距離236m、病院距離209m |
||
| 物件番号 | 983865 | 取引態様 | 仲介 |
| 情報更新日 | 2026年02月04日 | ||
| 物件番号 | |||
敷金・礼金・家賃・入居時期時期など、何でもご相談ください!
JR山手線・巣鴨駅から徒歩1分!
ハウス・トゥ・ハウス巣鴨店で元気にお待ちしております!







