ジュエル板橋区役所前301 3階 | 1K | 8.1万円
収納はクロゼット・シューズボックスなどが備え付けられているので、衣類や日用品の収納に重宝します。共用
| 賃料 | 8.1万円 | 管理費・共益費 | 0.5万円 |
|---|---|---|---|
| 敷金/礼金 | なし / 1ヶ月 | 専有面積 | 20.58m² |
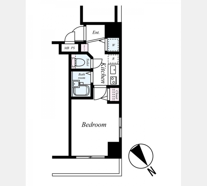
| 間取り | 1K | 階建 | 3階/11階建 |
ジュエル板橋区役所前301の詳細
| 物件種別 | マンション | ||
|---|---|---|---|
| 賃料 | 8.1万円 | 管理費・共益費 | 0.5万円 |
| 敷金/保証金 | なし / - | 礼金/償却・敷引 | 1ヶ月 / - |
| 更新料 | 1ヶ月 | ||
| その他費用 |
エアコン清掃費:16,500円 24時間サポート代:16,500円 クリーニング代:70,000円 鍵交換費用:33,000円 |
||
| 所在地 | 東京都板橋区板橋3丁目8-12 | ||
| 交通 | |||
| 間取り | 1K | 間取り内訳 |
洋室 |
| 専有面積 | 20.58m² | バルコニー面積 | |
| 築年月(築年数) | 2006年02月(築20年) | 方位 | 北東 |
| 建物構造 | RC(鉄筋コンクリート) | 所在階/階建 | 3階/11階建 |
| 総戸数 | - | 駐車場 | |
| 保険料 | 要 22,000円 2年 | 契約期間 | 2年間 |
| 現況(予定年月) | 2026年05月中旬 | ||
| 管理 | |||
| 設備・条件 | 2階以上、角部屋、システムキッチン、バス・トイレ別、室内洗濯機置き場、フローリング、エアコン、バルコニー、分譲賃貸、敷金なし、ペット相談、オートロック、TVドアホン、エレベータ、都市ガス | ||
| 備考 | ペット飼育可能(保証金1ヶ月償却)。解約予告2ヶ月申告。短期解約違約金有:1年未満賃料1ヶ月、半年未満賃料2ヶ月。 | ||
| 周辺施設 |
コンビニ距離84m、スーパー距離137m、病院距離1,297m |
||
| 物件番号 | 987507 | 取引態様 | 仲介 |
| 情報更新日 | 2026年02月08日 | ||
| 物件番号 | |||
敷金・礼金・家賃・入居時期時期など、何でもご相談ください!
3路線3駅利用可の板橋エリアでお部屋探し♪
ハウス・トゥ・ハウス板橋東口店で元気にお待ちしております!







