パークキューブ板橋本町1008 10階 | 1R | 10.4万円
室内設備は追い焚き・システムキッチンなど大変充実しております。
| 賃料 | 10.4万円 | 管理費・共益費 | 0.5万円 |
|---|---|---|---|
| 敷金/礼金 | 1ヶ月 / 1ヶ月 | 専有面積 | 24.65m² |
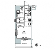
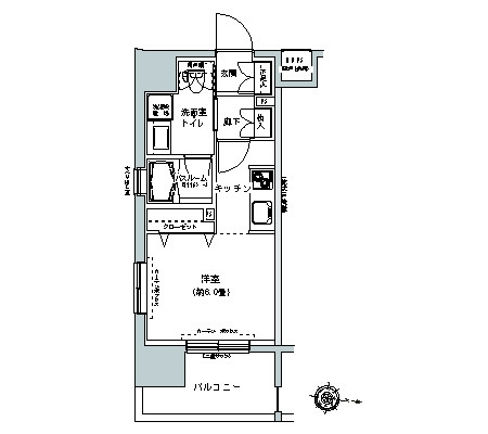
| 間取り | 1R | 階建 | 10階/14階建 |
パークキューブ板橋本町1008の詳細
| 物件種別 | マンション | ||
|---|---|---|---|
| 賃料 | 10.4万円 | 管理費・共益費 | 0.5万円 |
| 敷金/保証金 | 1ヶ月 / - | 礼金/償却・敷引 | 1ヶ月 / - |
| 更新料 | 1ヶ月 | ||
| その他費用 |
鍵交換費用:16,500円 室内清掃費用:55,000円 |
||
| 所在地 | 東京都板橋区大和町18-6 | ||
| 交通 | |||
| 間取り | 1R | 間取り内訳 |
洋室 6 畳 |
| 専有面積 | 24.65m² | バルコニー面積 | |
| 築年月(築年数) | 2008年03月(築17年) | 方位 | 東 |
| 建物構造 | RC(鉄筋コンクリート) | 所在階/階建 | 10階/14階建 |
| 総戸数 | - | 駐車場 | |
| 保険料 | 要 | 契約期間 | 2年間 |
| 現況(予定年月) | 2026年01月下旬 | ||
| 管理 | |||
| 設備・条件 | 2階以上、角部屋、システムキッチン、バス・トイレ別、温水洗浄便座、浴室乾燥機、追い焚き、室内洗濯機置き場、フローリング、エアコン、バルコニー、保証人不要、ペット相談、楽器相談、インターネット対応、BSアンテナ、CSアンテナ、CATV、オートロック、TVドアホン、宅配ボックス、バイク置き場、駐輪場、エレベータ、都市ガス | ||
| 備考 | 口座振替事務手数料110円(月額) 1年未満解約時賃料1ヶ月分の違約金有。ペット(小型犬or猫1匹迄)飼育時敷金1ヶ月積み増し。2025年10月1日から2026年3月31日(予定)大規模修繕工事あり。収納はシューズボックス・クロゼットなど豊富なので、広々と空間を利用することも可能です。室内設備は洗面所独立・浴室乾燥機などが揃っているので、快適に過ごしやすいお部屋になります。これからの新生活で失敗できないお部屋探し。板橋 | ||
| 周辺施設 |
コンビニ距離1m、スーパー距離219m、病院距離216m |
||
| 物件番号 | 959889 | 取引態様 | 仲介 |
| 情報更新日 | 2026年01月22日 | ||
| 物件番号 | |||
敷金・礼金・家賃・入居時期時期など、何でもご相談ください!
板橋でのお部屋探しなら仲宿商店街にある当店へ!
ハウス・トゥ・ハウス板橋区役所前店で元気にお待ちしております!







