レジディスかわぐち302 3階 | 1K | 7.3万円
| 賃料 | 7.3万円 | 管理費・共益費 | 0.3万円 |
|---|---|---|---|
| 敷金/礼金 | なし / 0.5ヶ月 | 専有面積 | 22.08m² |
| 間取り | 1K | 階建 | 3階/3階建 |
レジディスかわぐち302の詳細
| 物件種別 | アパート | ||
|---|---|---|---|
| 賃料 | 7.3万円 | 管理費・共益費 | 0.3万円 |
| 敷金/保証金 | なし / - | 礼金/償却・敷引 | 0.5ヶ月 / - |
| 更新料 | 1ヶ月 | ||
| その他費用 |
消毒費:16,500円 預りクリーニング:35,200円 リブリクラブ入会費:7,700円 鍵交換費用:24,200円 |
||
| 所在地 | 埼玉県川口市芝樋ノ爪1丁目7-35 | ||
| 交通 |
JR京浜東北・根岸線「蕨駅」 徒歩6分 JR京浜東北・根岸線「西川口駅」 徒歩32分 JR京浜東北・根岸線「南浦和駅」 徒歩33分 |
||
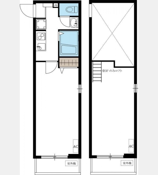
| 間取り | 1K | 間取り内訳 | |
| 専有面積 | 22.08m² | バルコニー面積 | |
| 築年月(築年数) | 2016年06月(築9年) | 方位 | 北 |
| 建物構造 | 木造 | 所在階/階建 | 3階/3階建 |
| 総戸数 | - | 駐車場 | |
| 保険料 | 要 19,000円 2年 | 契約期間 | 2年間 |
| 現況(予定年月) | 2026年04月上旬 | ||
| 管理 | |||
| 設備・条件 | 2階以上、最上階、角部屋、システムキッチン、バス・トイレ別、温水洗浄便座、浴室乾燥機、室内洗濯機置き場、フローリング、ロフト付き、エアコン、バルコニー、敷金なし、保証人不要、インターネット対応、オートロック、TVドアホン、プロパンガス | ||
| 備考 | |||
| 周辺施設 |
コンビニ距離353m、スーパー距離97m、病院距離1,399m |
||
| 物件番号 | 992447 | 取引態様 | 仲介 |
| 情報更新日 | 2026年02月20日 | ||
| 物件番号 | |||
敷金・礼金・家賃・入居時期時期など、何でもご相談ください!
埼玉県への玄関口・川口でお部屋探し♪
ハウス・トゥ・ハウス川口店で元気にお待ちしております!







