スマイルホーム王子205 2階 | 1R | 7.4万円
インターホン越しに来訪者を確認できるので、トラブルを事前に回避しやすくなります。室内設備はネット使用
| 賃料 | 7.4万円 | 管理費・共益費 | 0.35万円 |
|---|---|---|---|
| 敷金/礼金 | なし / 1ヶ月 | 専有面積 | 11.57m² |
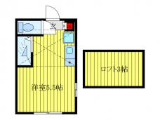
| 間取り | 1R | 階建 | 2階/2階建 |
スマイルホーム王子205の詳細
| 物件種別 | アパート | ||
|---|---|---|---|
| 賃料 | 7.4万円 | 管理費・共益費 | 0.35万円 |
| 敷金/保証金 | なし / - | 礼金/償却・敷引 | 1ヶ月 / - |
| 更新料 | 1.5ヶ月 | ||
| その他費用 |
入居中サポート:21,450円 抗菌代:17,600円 事務手数料:11,000円 鍵交換費用:22,000円 |
||
| 所在地 | 東京都北区王子4丁目4-16 | ||
| 交通 |
JR京浜東北・根岸線「東十条駅」 徒歩9分 JR京浜東北・根岸線「王子駅」 徒歩12分 |
||
| 間取り | 1R | 間取り内訳 |
洋室 |
| 専有面積 | 11.57m² | バルコニー面積 | |
| 築年月(築年数) | 2018年06月(築7年) | 方位 | 北西 |
| 建物構造 | 木造 | 所在階/階建 | 2階/2階建 |
| 総戸数 | - | 駐車場 | |
| 保険料 | 要 22,000円 2年 | 契約期間 | 2年間 |
| 現況(予定年月) | 即時 | ||
| 管理 | |||
| 設備・条件 | 2階以上、最上階、温水洗浄便座、室内洗濯機置き場、フローリング、エアコン、即入居可、敷金なし、インターネット対応、TVドアホン、プロパンガス | ||
| 備考 | 短期解約違約金有。室内設備はフローリング・冷蔵庫などが揃っているので、快適に過ごしやすいお部屋になります。暮らしやすいワンルームなので一人で住む方にオススメ。インターネット有りのお住まいで、パソコンを使う方にオススメ。2駅利用可能なアクセスの良いアパートです。一口コンロが付いています。住まいに関する情報を数多く提供しております。より自分に適した住まい選びをしていきましょう。私たちもサポート致します | ||
| 周辺施設 |
北区立王子小学校415m、北区立王子桜中学校531m、コンビニ距離294m、スーパー距離584m、病院距離430m |
||
| 物件番号 | 981383 | 取引態様 | 仲介 |
| 情報更新日 | 2026年01月26日 | ||
| 物件番号 | |||
敷金・礼金・家賃・入居時期時期など、何でもご相談ください!
王子駅徒歩1分!グリーンの看板が目印です!
ハウス・トゥ・ハウス王子店で元気にお待ちしております!







