メインステージ巣鴨1304 13階 | 1K | 10万円
多種多様な賃貸情報を取り扱っております。ご要望や不明な点などございましたら、お気軽にご連絡下さい。
| 賃料 | 10万円 | 管理費・共益費 | 0.8万円 |
|---|---|---|---|
| 敷金/礼金 | 1ヶ月 / 1ヶ月 | 専有面積 | 21.00m² |
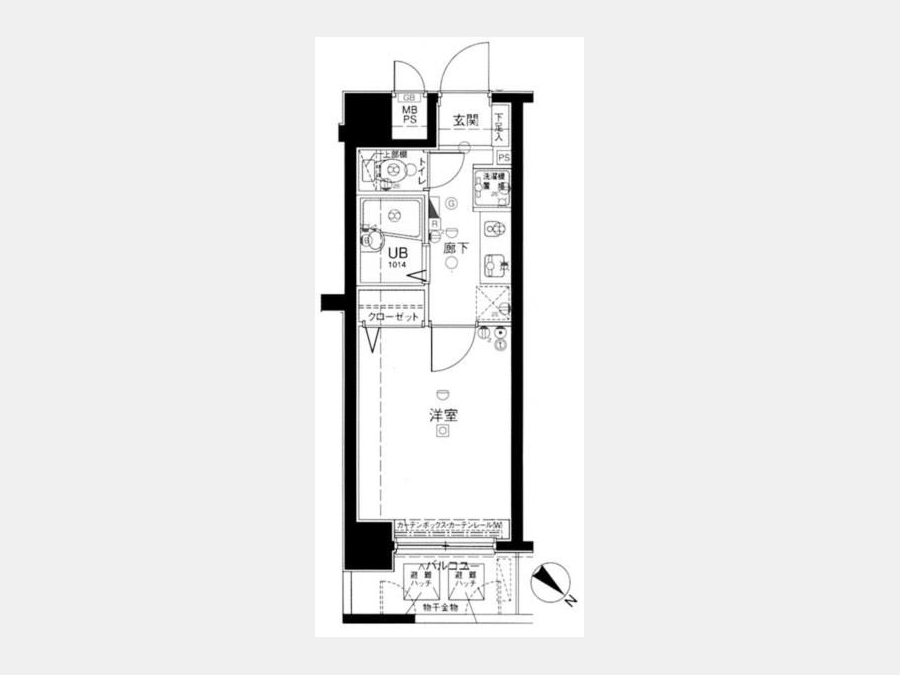
| 間取り | 1K | 階建 | 13階/13階建(B1階) |
メインステージ巣鴨1304の詳細
| 物件種別 | マンション | ||
|---|---|---|---|
| 賃料 | 10万円 | 管理費・共益費 | 0.8万円 |
| 敷金/保証金 | 1ヶ月 / - | 礼金/償却・敷引 | 1ヶ月 / - |
| 更新料 | 1.5ヶ月 | ||
| その他費用 |
契約事務手数料:11,000円 鍵交換費用:27,500円 室内清掃費用:60,500円 |
||
| 所在地 | 東京都豊島区巣鴨2丁目16-3 | ||
| 交通 | |||
| 間取り | 1K | 間取り内訳 |
洋室 K |
| 専有面積 | 21.00m² | バルコニー面積 | |
| 築年月(築年数) | 1998年12月(築27年) | 方位 | 北東 |
| 建物構造 | SRC(鉄骨鉄筋コンクリート) | 所在階/階建 | 13階/13階建(B1階) |
| 総戸数 | 97戸 | 駐車場 | |
| 保険料 | 要 21,500円 2年 | 契約期間 | 2年間 |
| 現況(予定年月) | 2026年05月中旬 | ||
| 管理 | |||
| 設備・条件 | 2階以上、最上階、システムキッチン、バス・トイレ別、室内洗濯機置き場、フローリング、エアコン、バルコニー、分譲賃貸、保証人不要、オートロック、TVドアホン、宅配ボックス、駐輪場、エレベータ、都市ガス | ||
| 備考 | Concierge24990円(月額) 6カ月未満の解約時は総賃料1ヶ月分の短期解約違約金あり。 更新事務手数料11000円。 | ||
| 周辺施設 |
コンビニ距離124m、スーパー距離269m、病院距離320m |
||
| 物件番号 | 1000768 | 取引態様 | 仲介 |
| 情報更新日 | 2026年03月10日 | ||
| 物件番号 | |||
敷金・礼金・家賃・入居時期時期など、何でもご相談ください!
歴史と情緒が薫る街・西日暮里でお部屋探し♪
ハウス・トゥ・ハウス西日暮里店で元気にお待ちしております!







