フロンティアレジデンス板橋506 5階 | 1DK | 15.1万円
近くにはローソン 板橋区役所前店(徒歩2分)がありちょっとした買い物に便利です。セキュリティ面は、T
| 賃料 | 15.1万円 | 管理費・共益費 | 1.5万円 |
|---|---|---|---|
| 敷金/礼金 | 1ヶ月 / なし | 専有面積 | 31.23m² |
| 間取り | 1DK | 階建 | 5階/16階建 |
フロンティアレジデンス板橋506の詳細
| 物件種別 | マンション | ||
|---|---|---|---|
| 賃料 | 15.1万円 | 管理費・共益費 | 1.5万円 |
| 敷金/保証金 | 1ヶ月 / - | 礼金/償却・敷引 | なし / - |
| 更新料 | 1ヶ月 | ||
| その他費用 |
安心入居サポート(税込・必須):22,000円 鍵交換費用:27,500円 |
||
| 所在地 | 東京都板橋区板橋2丁目65-9 | ||
| 交通 | |||
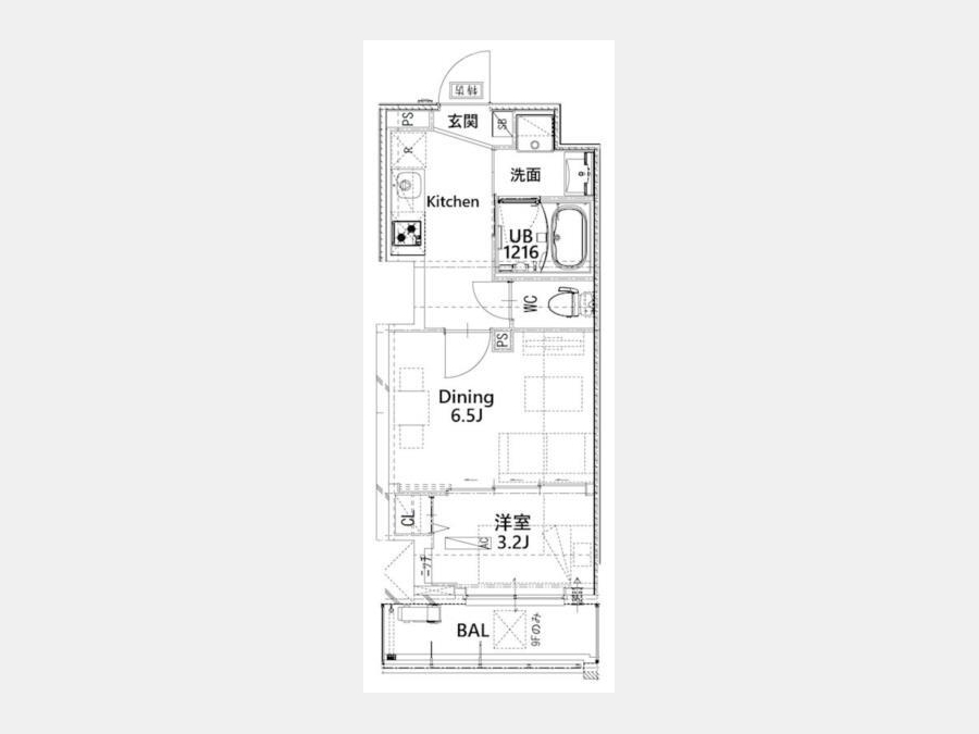
| 間取り | 1DK | 間取り内訳 |
洋室 3.2 畳 1 室 DK 6.5 畳 1 室 |
| 専有面積 | 31.23m² | バルコニー面積 | |
| 築年月(築年数) | 2023年12月(築2年) | 方位 | - |
| 建物構造 | RC(鉄筋コンクリート) | 所在階/階建 | 5階/16階建 |
| 総戸数 | 92戸 | 駐車場 | |
| 保険料 | 要 23,000円 2年 | 契約期間 | 2年間 |
| 現況(予定年月) | 2026年03月中旬 | ||
| 管理 | |||
| 設備・条件 | 2階以上、システムキッチン、バス・トイレ別、温水洗浄便座、浴室乾燥機、室内洗濯機置き場、エアコン、バルコニー、礼金なし、ペット相談、2人入居相談、仲介手数料無料、インターネット対応、BSアンテナ、オートロック、TVドアホン、防犯カメラ、宅配ボックス、バイク置き場、駐輪場、エレベータ、都市ガス | ||
| 備考 | 短期解約違約金:半年未満賃料管理費2ヶ月分、1年未満賃料管理費1ヶ月分。 解約予告2ヶ月前。 退去時ルームクリーニング費用52000円。 退去時エアコンない洗浄費用16500円/台。 ペット飼育可(小型犬又は猫1匹まで)飼育の際は償却敷金1ヶ月追加。 喫煙:室内・共用不可※アイコス含む。 法人様の場合礼金1ヶ月追加。 フリーレント1ヶ月、2月中契約締結に限り付与。 駐輪場・バイク置場:要問合せ。 | ||
| 周辺施設 |
コンビニ距離106m、スーパー距離59m、病院距離349m |
||
| 物件番号 | 967755 | 取引態様 | 仲介 |
| 情報更新日 | 2026年02月20日 | ||
| 物件番号 | |||
敷金・礼金・家賃・入居時期時期など、何でもご相談ください!
JR山手線・巣鴨駅から徒歩1分!
ハウス・トゥ・ハウス巣鴨店で元気にお待ちしております!







